4 Shelton Street Kirwan QLD
Original High-Set Home With New Roof In Quiet Street – Vacant
Sold by Nathan and Graham Lynham
Offered to the market for the first time in over 30 years, this original three bedroom high set home with new roof (Replaced 2025) and fully repainted internally.
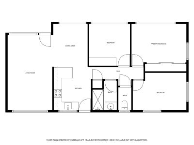
Conveniently located in a quiet street just off Mill Drive, minutes from major shopping centres and schools, the home features three bedrooms, kitchen, open-plan dining and living areas, and bathroom and toilet upstairs.
Downstairs is enclosed, and whilst there has been some work to allow for dual living it is not council-approved and needs further work.
Note that only one air-conditioner, a split in the main living area works.
The allotment has side and rear fencing.
It’s fair to say it could be modernised and would ideally suit a first home buyer who could move in straight away and modernise at their own pace or an investor.
THE PROPERTY
– 3 bedrooms (2 have with built-in wardrobes)
– Open-plan living & dining
– New roof 2025
– Freshly painted upstairs and down internally
– Functional kitchen with ample bench space and storage
– Bathroom with combination shower plus separate toilet
– Underneath includes car accommodation
– Some renovation underneath but not council approved
– One air-conditioner (split system in living)
THE LOCATION
– Close to Woolworths IGA and short drive to Coles Supermarkets
– Walk to Heatley Primary School and close proximity to quality primary and
secondary schools
– Only 5 minutes to Willows Shopping Centre in one direction and
Stockland/Myer in the other
– 8 minutes proximity to Riverway Complex and Stadium
– Well-connected position, easy access to all Townsville has to offer
Disclaimer: Floor plan (upstairs) is for a guide only. While all care has been taken to ensure the information provided herein is correct, we do not take responsibility for any inaccuracies and we accept no liability for any errors or exclusions (including but not limited to a property’s land size, floor plans and building age). Accordingly all interested parties should make their own enquiries and obtain their own legal advice.
$ 465,000
Property Type
House
